TB3雙金屬片式蒸汽疏水閥產品概述
TB3F、TB3W、TB3雙金屬片式蒸汽疏水閥主要由閥體、閥蓋、閥座、閥瓣及雙金屬片組等組成,其中雙金屬片組件是其驅動元件,使用時,它可依凝結水溫度的變化而產生不同程度的變形來推動蒸汽疏水閥的開啟和關閉。該閥采用線性密封關閉系統和微米級高精度閥座、閥芯,確保關閉可靠,無原蒸汽泄漏、無噪音、排空氣能力好,充分利用凝結水的顯熱,節能效果好,并且用戶可根據季節變換,隨時調節凝結水的排放溫度,調整時,只需卸下閥帽,松開螺母,將螺桿沿順時針方向旋轉到頭(即零點),并在曲線圖表中找出所要求調節溫度的圈數,然后沿逆時針方向旋轉螺桿達到所要求的圈數,并用螺母固定之,然后擰上閥帽即可。本產品還內置有過濾裝置,能有效阻止管道雜質進入閥內,保證閥正常工作,同時防止水錘損毀內部部件。
TB3雙金屬片式蒸汽疏水閥部件材料
序號 | 部件名稱 | 材料名稱 | ||||
1 | 閥 體 | A105 | A182 F11 CL.2 | A182 304 | A182 316 | A182 316L |
2 | 閥 蓋 | A105 | A182 F11 CL.2 | A182 304 | A182 316 | A182 316L |
3 | 閥 帽 | A105 | A182 F11 CL.2 | A182 304 | A182 316 | A182 316L |
4 | 螺 桿 | A276 304 | A276 304 | A276 304 | A276 316 | A276 316L |
5 | 雙金屬片 | A182 304 | A182 304 | A182 304 | A182 316 | A182 316L |
6 | 彈 簧 | A276 304 | A276 304 | A276 304 | A276 316 | A276 316L |
7 | 閥 瓣 | 17-4PH | 17-4PH | A276 304 | A276 316 | A276 316L |
8 | 閥 座 | 17-4PH | 17-4PH | A276 304 | A276 316 | A276 316L |
TB3雙金屬片式蒸汽疏水閥性能參數
公稱壓力PN(MPa) | 1.6 | 2.5 | 4.0 | 2.0 | 5.0 |
殼體試驗壓力(MPa) | 2.4 | 3.75 | 6.0 | 3.0 | 7.5 |
調整溫度范圍(℃) | 50 ~ 190 | ||||
設計制造 | GB/T 22654-2008 蒸汽疏水閥 技術條件 | ||||
結構長度 | GB/T 12250-2005 蒸汽疏水閥 術語、標志、結構長度 | ||||
連接法蘭 | JB/T 79、GB/T 9113、HG/T 20592、HG/T 20615、ASME B16.5等 | ||||
螺紋標準 | GB/T 7306.1、GB/T 7306.2、GB/T 7307、GB/T 12716、ASME B1.20.1等 | ||||
焊接端部 | 承插焊按JB/T 7746或ASME B16.11,對焊按GB/T 12224或ASME B16.25等 | ||||
檢驗試驗 | GB/T 12251-2005 蒸汽疏水閥 試驗方法 | ||||
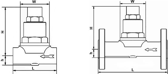
TB3雙金屬片式蒸汽疏水閥外型尺寸
公稱壓力 PN | 公稱通徑 DN | 法蘭連接結構尺寸(mm) | 螺紋和承插焊連接結構尺寸(mm) | ||||||
L | H | h | W | L | H | h | W | ||
16 ~ 25 (Class150)20 | 15 | 150 | 90 | 17 | 56 | 80 | 90 | 17 | 56 |
20 | 150 | 90 | 19 | 56 | 80 | 90 | 19 | 56 | |
25 | 160 | 90 | 23 | 56 | 85 | 90 | 23 | 56 | |
TB3雙金屬片式蒸汽疏水閥結構圖

如果你需要的雙金屬片蒸汽疏水閥有技術要求,須在訂貨合同中注明,本產品應安裝在蒸汽管路較低的位置,閥門前應裝有過濾器、截止閥,閥后應設有止回閥,同時安裝旁路閥和旁通閥。
網站首頁